| 层 数 | 结构形式 | 建筑风格 | |||
| 开 间 | 
                                                    10.00m
                                                 | 占地面积 | 
                                                    120.00㎡
                                                 | 建筑面积 | 
                                                    433.90㎡
                                                 | 
| 进 深 | 
                                                    12.00m
                                                 | 主体造价 | 
                                                    56万~70万(仅供参考)
                                                 | 制作软件 | 
                                                    AutoCAD
                                                 | 
| 图纸内容 | |||
| 建筑图 | 建筑设计说明,构造表,一层平面图,二层平面图,三层平面图,四层平面图闷顶层平面,屋顶层平面图,立面图,剖面图,楼梯平面详图,节点详图,墙身大样图,门窗大样图,门窗表 | ||
| 结构图 | 结构设计说明,基础大样图,基础施工图,基础顶~屋顶柱施工图,一层结构施工图,二层结构施工图,三层结构施工图,四层结构施工图,屋顶层施工图,大样图。 | ||
| 给排水图 | 给排水设计说明,一层给排水平面图,二层给排水平面图,三层给排水平面图,四层给排水平面图,屋顶层排水平面图,给排水系统原理图,卫生间给排水详图,化粪池大样图,污水检查井大样图。 | ||
| 电气图 | 电气设计说明,电气设计说明,主要设备及材料表,配电箱系统图,弱电系统图,一层照明平面图,二层照明平面图,三层照明平面图,四层照明平面图,一层插座平面图,二层插座平面图,三层插座平面图,四层插座平面图,一层弱电平面图,二层弱电平面图,三层弱电平面图,四层弱电平面图,屋面防雷平面图。 | ||
| 设计功能 | |||
| 一层 | 玄关,客厅,餐厅,楼梯,卧室,公卫 | ||
| 二层 | 2卧室,内卫,公卫,楼梯,阳台 | ||
| 三层 | 3卧室,2内卫,公卫,楼梯,书房,阳台 | ||
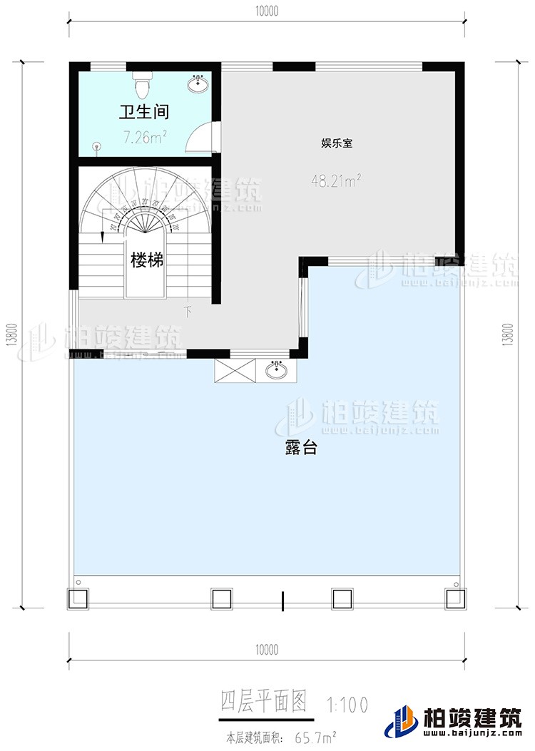
| 四层 | 娱乐室,公卫,楼梯,露台 | ||
 
                                
 
                                
 
                                
 
                                
 
                                
没有任何评论
 
                            请您在下订单前与在线客服确认配送范围。
您在本站订购的图纸,我们客服人员会电话与您联系确认图纸编号、收货信息等, 感谢您对本站的关注,祝您网上购物愉快!
购图前重要说明:
购买本套图纸仅提供打印好的图纸一份,我们不出售电子文件、光盘。我们设计的图纸非常详细,用A3规格打印图纸,比传统蓝图更清晰、容易复印、方便收藏,可以直接应用到施工现场。售后服务仅为图纸答疑,不包任何修改,因为只要其中一张图纸改变,其它图纸相应均需修改,工作量较大,所以我们不包修改。如果您个性要求较多需按要求订做设计,请查看别墅设计业务流程,并联系设计客服咨询设计收费标准。